Arranca el procedimiento para ampliar el Recinto Colombino de Huelva
Adjudicada la asistencia técnica para la redacción del proyecto por valor de 18.000 euros
La idea es que la primera fase esté lista para las fiestas de 2026
Estas Colombinas de 2025 serán las últimas en el actual recinto: así se proyecta el nuevo
La ampliación del recinto colombino, más cerca con la reparcelación del Tiro Pichón

Los trámites administrativos que han de culminar en la ampliación del Recinto Colombino acaban de arrancar con la adjudicación de la asistencia técnica para la redacción del proyecto.
La misma ha sido adjudicada por valor de 18.000 euros a BC Estudio Cellier, que tendrá un plazo de dos meses para prestar un asesoramiento encaminado a diseñar la que será la primera fase de esta ampliación, que el Ayuntamiento de Huelva ya anunció que aspira a que esté lista de cara a la próxima edición de las fiestas.
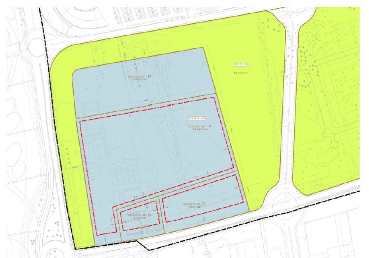
El nuevo recinto colombino busca acercar las fiestas a la ría, sumando más de 12.00 metros cuadrados de la parcela que se extiende entre el actual espacio en el que se instalan las Colombinas y la avenida Francisco Montenegro. Así, la intención es que en próximas ediciones la portada mire a la ría, desde el espacio que hasta ahora venía ocupando el Tiro Pichón.
Así, con la portada y el escenario de cara al frente marítimo, todo el eje del recinto se modifica, redistribuyendo los espacios, con calles más amplias y creando además un nuevo espacio de conciertos mucho mayor.
Nuevo espacio frente a la ría
Nuevo espacio que está un poco más cerca con la adjudicación, la semana pasada, por parte del Ayuntamiento de Huela, de este trabajo de asistencia técnica, que vendrá a ofrecer las claves para acondicionar la parcela que se suma al recinto ferial de la manera más apropiada.
Según se indicó en su momento, cuando se anunció la intención de poner en marcha esta ampliación, la primera fase consistirá en la instalación del saneamiento y las redes de suministro, para seguir avanzando en los trabajos hasta el objetivo final, que es la culminación de un Recinto Ferial permanente, que pueda acoger actividades durante todo el año.